Fennia Block: Halonen

Vuorikatu 14

Kluuvi, Vuorikatu 14, 00100 Helsinki
The Vuorikatu 14 property, also known as the Halonen building, is a modern office and retail property in the Fennia Block in the Helsinki city centre. Situated next to the Railway Station Square, the it is easily accessible by public transport from all corners of the Helsinki metropolitan area.

Thanks to the central location, all the commercial and business services of the city centre are within a short walking distance and the customer volumes are high. The building, erected in 1927, was thoroughly renovated in the early 2000s to serve as a modern office and retail property. The five uppermost floors house renovated office space, and the street level has retail space for rent. The premises can be easily modified according to specific needs. There are a number of restaurants at the street level. The property is ideal for a company that values good public transport connections and a wide variety of services in the city centre.

All properties in the Fennia Block have been awarded a BREEAM In-Use Excellent -level certification and they operate on 100% emission-free energy such as wind power and renewable district heating.

Property details

Accessibility

The Central Railway Station and the Rautatientori bus station located nearby provide excellent accessibility to public transport, supplemented by the University of Helsinki metro station located below the block.

Services

The Fennia Block offers a large number of restaurant and other entertainment services. The central location of the property ensures that all commercial and business services are located within a short walking distance. There is an indoor bike storage as well as locker rooms and showers available for commuter cyclists.

Parking

Private cars have access to the Eliel parking facility, which is connected to the Central Railway Station, and the Kluuvi parking facility, which provides direct access to the University of Helsinki metro station.

Available spaces

  • Office space – 2nd floor

    A multi-function office space with many possibilities is customized to the customer’s wishes and intended use.
    • Floor area

      1438 m2

    Contact us

  • Office space – 2nd floor

    A multi-function office space with many possibilities is customized to the customer’s wishes and intended use.
    • Floor area

      917 m2

    Contact us

  • Office space – 3rd floor

    A multi-function office space with many possibilities is customized to the customer’s wishes and intended use.
    • Floor area

      877 m2

    Contact us

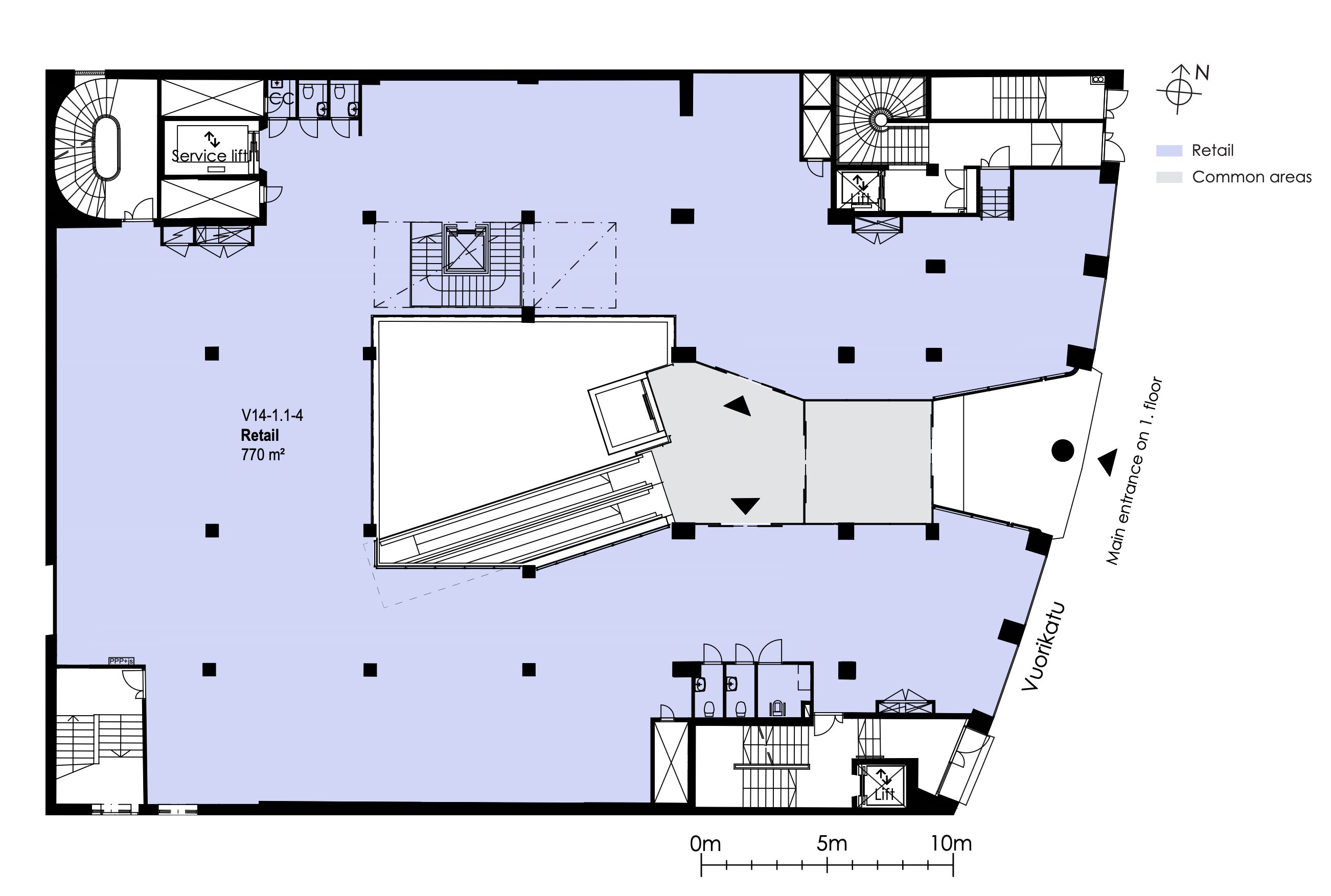
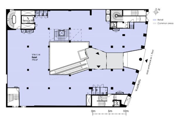
  • Retail space – 1st floor

    A versatile ground-floor retail space located at the entrance of the busy Kaisaniemi metro station. The space is flexible in size, ranging from approximately 400–770 m2 on the ground floor, and up to around 2,200 m2 when the second floor is included as part of the overall premises. The location is ideal for leisure and recreational concepts as well as a wide range of retail uses.
    • Floor area

      770 m2

    Contact us

  • Office space – 4th floor

    Neat office space next to Fennia block's wide range of services.
    • Floor area

      529 m2

    Contact us

  • Office space – 4th floor

    A neat open-plan office space which can also be divided into rooms if needed. Fennia block's wide range of services.
    • Floor area

      369 m2

    Contact us

  • Retail space – 0th floor

    One restaurant space for rent in the Ruoka & Mat food court in the Fennia block. The restaurant space is 47,5m² and the serving area is 65m². The customer area is shared by all the restaurants in the food court. Other restaurants that serve in the food court are Baba Döner, which makes premium kebabs, Freshman, which specializes in tropical poke dishes, Sizzle Station, which swears by experiential food preparation, Onni Nepal, which offers Nepali delicacies and Shoku burger, which offers delicious burgers.
    • Floor area

      112 m2

    Contact us

Name Floor Area Availability Description
Office space 2 1438 m2 Free A multi-function office space with many possibilities is customized to the customer’s wishes and intended use.
Office space 2 917 m2 Free A multi-function office space with many possibilities is customized to the customer’s wishes and intended use.
Office space 3 877 m2 Free A multi-function office space with many possibilities is customized to the customer’s wishes and intended use.
Retail space 1 770 m2 Free A versatile ground-floor retail space located at the entrance of the busy Kaisaniemi metro station. The space is flexible in size, ranging from approximately 400–770 m2 on the ground floor, and up to around 2,200 m2 when the second floor is included as part of the overall premises. The location is ideal for leisure and recreational concepts as well as a wide range of retail uses.
Office space 4 529 m2 Free Neat office space next to Fennia block's wide range of services.
Office space 4 369 m2 Free A neat open-plan office space which can also be divided into rooms if needed. Fennia block's wide range of services.
Retail space 0 112 m2 Free One restaurant space for rent in the Ruoka & Mat food court in the Fennia block. The restaurant space is 47,5m² and the serving area is 65m². The customer area is shared by all the restaurants in the food court. Other restaurants that serve in the food court are Baba Döner, which makes premium kebabs, Freshman, which specializes in tropical poke dishes, Sizzle Station, which swears by experiential food preparation, Onni Nepal, which offers Nepali delicacies and Shoku burger, which offers delicious burgers.

Contact information

Contact us about

Kluuvi, Vuorikatu 14, 00100 Helsinki