Fennia-kortteli: Halonen

Vuorikatu 14

Kluuvi, Vuorikatu 14, 00100 Helsinki
Halosen talona tunnettu toimisto- ja liikekiinteistö sijaitsee Helsingin ydinkeskustassa. Kiinteistölle on erinomaiset julkisen liikenteen yhteydet.

Keskeinen sijainti takaa myös sen, että kaikki keskustan kaupalliset ja yrityspalvelut ovat lyhyen kävelymatkan etäisyydellä ja asiakasvirrat alueella ovat vertaansa vailla.

Vuonna 1927 valmistunut kiinteistö on saneerattu 2000-luvun alussa nykyaikaisia tarpeita palvelevaksi toimisto- ja liikekiinteistöksi. Katutasossa on liiketiloja ja ylemmissä kerroksissa toimistotilaa. Tilat ovat helposti muunneltavissa yrityskohtaisesti. Fennia-korttelin ytimessä sijaitseva kaikille avoin ravintola-alue, Ruoka & Mat tarjoaa viihtyisät puitteet ja monipuoliset ravintolat kohtaamisille kaupungin keskellä. Halonen sopii loistavasti hyviä julkisen liikenteen kulkuyhteyksiä ja keskustan palvelutarjontaa arvostavalle yritykselle.

Kaikille Fennia-korttelin kiinteistöille on myönnetty BREEAM In-Use Excellent -tason ympäristösertifikaatti ja koko kortteli toimii 100 % päästöttömällä energialla, kuten tuulisähköllä ja uusiutuvalla kaukolämmöllä.

Kiinteistön tiedot

Saavutettavuus

Kiinteistön tuntumassa sijaitsevat Rautatieasema sekä Rautatientorin linja-autoasema takaavat erinomaisen julkisen liikenteen saavutettavuuden, jota täydentää korttelin alapuolella sijaitseva Helsingin yliopiston metroasema.

Palvelut

Fennia-korttelissa on mittava määrä ravintola- ja muita viihdepalveluita. Keskeinen sijainti ydinkeskustassa takaa sen, että kaikki kaupalliset ja yrityspalvelut sijaitsevat lyhyen kävelymatkan etäisyydellä. Työmatkapyöräilijöita varten löytyy pyörävarasto sekä sosiaalitilat.

Pysäköinti

Henkilöautoilijoita palvelevat rautatieaseman yhteydessä sijaitseva Elielin pysäköintilaitos ja Kluuvin pysäköintilaitos, josta on suora yhteys Helsingin yliopiston metroaseman kautta.

Vapaat tilat

  • Toimistotila – 2. kerros

    Monien mahdollisuuksien monitilatoimisto räätälöidään toiveiden ja käyttötarkoituksen mukaan.
    • Pinta-ala

      1438 m2

    Ota yhteyttä

  • Toimistotila – 2. kerros

    Monien mahdollisuuksien monitilatoimisto räätälöidään toiveiden ja käyttötarkoituksen mukaan.
    • Pinta-ala

      917 m2

    Ota yhteyttä

  • Toimistotila – 3. kerros

    Monien mahdollisuuksien monitilatoimisto räätälöidään toiveiden ja käyttötarkoituksen mukaan.
    • Pinta-ala

      877 m2

    Ota yhteyttä

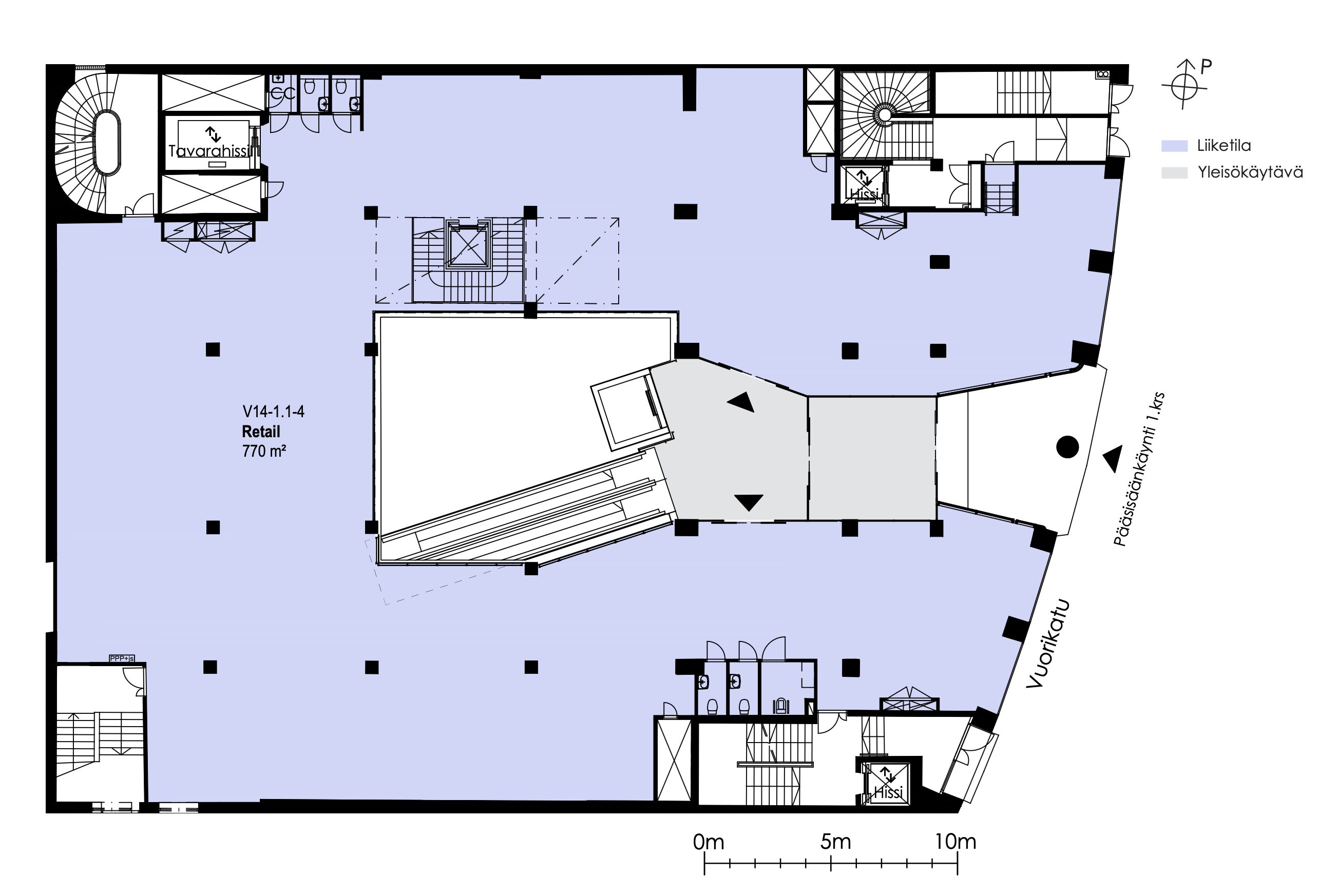
  • Liiketila – 1. kerros

    Monien mahdollisuuksien liiketila katutasossa vilkkaan Kaisaniemen metroaseman sisäänkäynnin yhteydessä. Tilakoko on joustava ja voi olla katutasossa n. 400-770 m2 ja aina noin 2 200 m2 saakka, kun toinen kerros lisätään kokonaisuuteen. Sijainti on ihanteellinen mm. vapaa-ajan ja harrastekonsepteille ja sekä monipuolisesti retail-toimintaan.
    • Pinta-ala

      770 m2

    Ota yhteyttä

  • Toimistotila – 4. kerros

    Siistiä toimistotilaa Fennia-korttelin kattavien palveluiden ääressä.
    • Pinta-ala

      529 m2

    Ota yhteyttä

  • Toimistotila – 4. kerros

    Siisti toimistotila, jossa avotilaa, mutta muutöstöillä jaettavissa huoneiksi tarvittaessa. Fennia-korttelin kattavat palvelut.
    • Pinta-ala

      369 m2

    Ota yhteyttä

  • Liiketila – 0. kerros

    Fennia-korttelin Ruoka & Mat -foodcourtissa yksi ravintolatila vuokrattavana. Ravintolatila on 47,5m² ja tarjoilualue 65m². Asiakasalue on yhteiskäytössä foodcourtin kaikkien ravintoloiden kesken. Täällä palvelevat premium-kebabeja tarjoava Baba Döner, trooppisiin poke-annoksiin erikoistunut Freshman sekä elämyksellisen ruoanvalmistuksen nimiin vannova Sizzle Station, nepalilaisia herkkuja tarjoava Onni Nepal ja herkullisia burgereita tarjoava Shoku burger.
    • Pinta-ala

      112 m2

    Ota yhteyttä

Nimi Kerros Pinta-ala Saatavuus Kuvaus
Toimistotila 2 1438 m2 Vapaa Monien mahdollisuuksien monitilatoimisto räätälöidään toiveiden ja käyttötarkoituksen mukaan.
Toimistotila 2 917 m2 Vapaa Monien mahdollisuuksien monitilatoimisto räätälöidään toiveiden ja käyttötarkoituksen mukaan.
Toimistotila 3 877 m2 Vapaa Monien mahdollisuuksien monitilatoimisto räätälöidään toiveiden ja käyttötarkoituksen mukaan.
Liiketila 1 770 m2 Vapaa Monien mahdollisuuksien liiketila katutasossa vilkkaan Kaisaniemen metroaseman sisäänkäynnin yhteydessä. Tilakoko on joustava ja voi olla katutasossa n. 400-770 m2 ja aina noin 2 200 m2 saakka, kun toinen kerros lisätään kokonaisuuteen. Sijainti on ihanteellinen mm. vapaa-ajan ja harrastekonsepteille ja sekä monipuolisesti retail-toimintaan.
Toimistotila 4 529 m2 Vapaa Siistiä toimistotilaa Fennia-korttelin kattavien palveluiden ääressä.
Toimistotila 4 369 m2 Vapaa Siisti toimistotila, jossa avotilaa, mutta muutöstöillä jaettavissa huoneiksi tarvittaessa. Fennia-korttelin kattavat palvelut.
Liiketila 0 112 m2 Vapaa Fennia-korttelin Ruoka & Mat -foodcourtissa yksi ravintolatila vuokrattavana. Ravintolatila on 47,5m² ja tarjoilualue 65m². Asiakasalue on yhteiskäytössä foodcourtin kaikkien ravintoloiden kesken. Täällä palvelevat premium-kebabeja tarjoava Baba Döner, trooppisiin poke-annoksiin erikoistunut Freshman sekä elämyksellisen ruoanvalmistuksen nimiin vannova Sizzle Station, nepalilaisia herkkuja tarjoava Onni Nepal ja herkullisia burgereita tarjoava Shoku burger.

Yhteystiedot

Haluatko lisätietoa kohteesta?

Kluuvi, Vuorikatu 14, 00100 Helsinki