Fennia-kortteli: Vilhonkatu 6

Vilhonkatu 6

Kluuvi, Vilhonkatu 6, 00100 Helsinki
Historic office and retail property with an excellent location next to all services in the Fennia block.

Vilhonkatu 6, designed by architect Theodor Höijer and completed in 1888, stands as a distinguished example of his style, blending historical dignity with the timeless elegance of the cityscape. Originally built as a residential property, Vilhonkatu 6 has since been adapted for retail and office use. Despite the passage of decades, this magnificent building has preserved its unique character and atmosphere. Over the years, the premises have undergone several renovations, with some spaces featuring beautifully restored original elements, such as the impressive decommissioned ornamental fireplaces. The building’s facade was also renovated in 2025.

The first two floors consist of retail space and the upper floors office space. The property offers both traditional office layouts and flexible open-plan spaces, all benefiting from generous ceiling heights.

Located in the Fennia Block, right next to the Central Railway Station, the property enjoys excellent public transport connections throughout the capital region. Commercial and business services are also just a short walk away.

All properties in the Fennia Block have been awarded the BREEAM In-Use Excellent certification and operate entirely on emission-free energy, including wind power and renewable district heating.

Property details

Accessibility

The Central Railway Station and the adjacent Rautatientori bus station provide excellent accessibility to public transport, supplemented by the University of Helsinki metro station located below the block.

Services

The Fennia Block offers a large number of restaurants and other entertainment services. The central location of the property ensures that all commercial and business services are located within a short walking distance. There is an indoor bike storage as well as locker rooms and showers available for commuter cyclists.

Parking

Private cars have access to the Eliel parking facility, which is connected to the Central Railway Station, and the Kluuvi parking facility, which provides direct access to the University of Helsinki metro station.

Available spaces

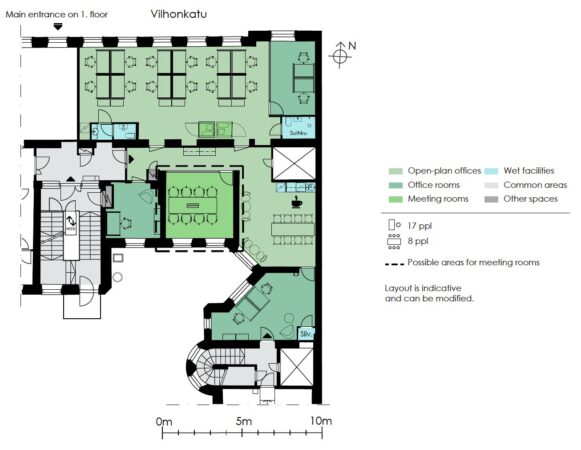
  • Office space – 5th floor

    Top floor office with open space and rooms. The space has good ceiling height and views of both Vilhonkatu and the courtyard.
    • Floor area

      194 m2

    Contact us

  • Office space – 5th floor

    Top floor office with open space and rooms. The space has good ceiling height and views of both Vilhonkatu and the courtyard.
    • Floor area

      186 m2

    Contact us

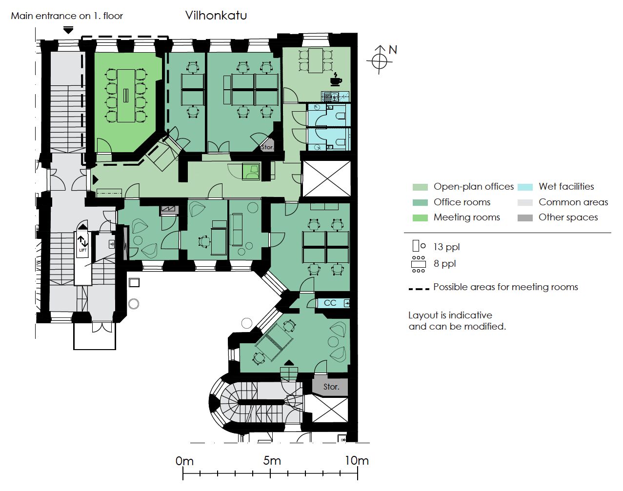
  • Office space – 4th floor

    4th floor office with both rooms and open space. Views of both Vilhonkatu and the courtyard. The space has good ceiling height and its specialty are several gorgeous decommisioned ornamental fireplaces.
    • Floor area

      183 m2

    Contact us

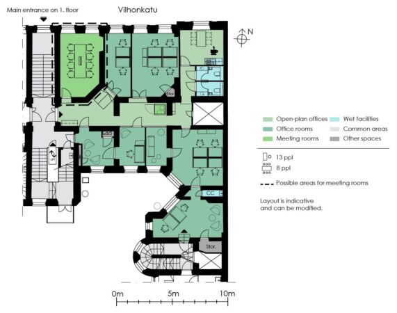
  • Office space – 3rd floor

    3rd floor office with both rooms and open space. Views of both Vilhonkatu and the courtyard. The space has good ceiling height and its specialty are several gorgeous decommisioned ornamental fireplaces.
    • Floor area

      181 m2

    Contact us

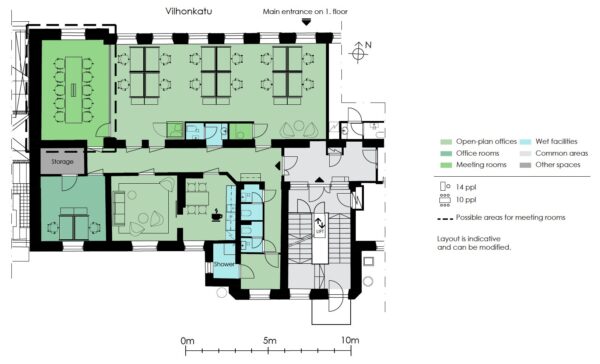
  • Office space – 2nd floor

    2nd floor office with both rooms and open space. Views of both Vilhonkatu and the courtyard.
    • Floor area

      179 m2

    Contact us

  • Office space – 3rd floor

    3rd floor office with both rooms and open space. Views of both Vilhonkatu and the courtyard. The space has good ceiling height and its specialty are several gorgeous decommisioned ornamental fireplaces.
    • Floor area

      176 m2

    Contact us

  • Office space – 4th floor

    4th floor office with both rooms and open space. Views of both Vilhonkatu and the courtyard. The space has good ceiling height and its specialty are several gorgeous decommisioned ornamental fireplaces.
    • Floor area

      173 m2

    Contact us

  • Office space – 2nd floor

    2nd floor office with both rooms and open space. Views of both Vilhonkatu and the courtyard. The space has good ceiling height and its specialty are several gorgeous decommisioned ornamental fireplaces.
    • Floor area

      150 m2

    Contact us

Name Floor Area Availability Description
Office space 5 194 m2 Free Top floor office with open space and rooms. The space has good ceiling height and views of both Vilhonkatu and the courtyard.
Office space 5 186 m2 Free Top floor office with open space and rooms. The space has good ceiling height and views of both Vilhonkatu and the courtyard.
Office space 4 183 m2 Free 4th floor office with both rooms and open space. Views of both Vilhonkatu and the courtyard. The space has good ceiling height and its specialty are several gorgeous decommisioned ornamental fireplaces.
Office space 3 181 m2 Free 3rd floor office with both rooms and open space. Views of both Vilhonkatu and the courtyard. The space has good ceiling height and its specialty are several gorgeous decommisioned ornamental fireplaces.
Office space 2 179 m2 Free 2nd floor office with both rooms and open space. Views of both Vilhonkatu and the courtyard.
Office space 3 176 m2 Free 3rd floor office with both rooms and open space. Views of both Vilhonkatu and the courtyard. The space has good ceiling height and its specialty are several gorgeous decommisioned ornamental fireplaces.
Office space 4 173 m2 Free 4th floor office with both rooms and open space. Views of both Vilhonkatu and the courtyard. The space has good ceiling height and its specialty are several gorgeous decommisioned ornamental fireplaces.
Office space 2 150 m2 Free 2nd floor office with both rooms and open space. Views of both Vilhonkatu and the courtyard. The space has good ceiling height and its specialty are several gorgeous decommisioned ornamental fireplaces.

Contact information

Contact us about

Kluuvi, Vilhonkatu 6, 00100 Helsinki