Fennia-kortteli: Vilhonkatu 6

Vilhonkatu 6

Kluuvi, Vilhonkatu 6, 00100 Helsinki
Historiaa henkivä toimisto- ja liikekiinteistö erinomaisella sijainnilla kaikkien palveluiden äärellä Fennia-korttelissa.

Arkkitehti Theodor Höijerin suunnittelema Vilhonkatu 6 valmistui vuonna 1888, ja se on yksi hänen hienoimmista tyylinäytteistään, jossa historiallinen arvokkuus yhdistyy kaupunkikuvan ajattomaan eleganssiin. Alun perin asuinrakennuksena toiminut rakennus on vuosien saatossa muuntunut liike- ja toimistokäyttöön, mutta on säilyttänyt ainutlaatuisen ilmeensä ja tunnelmansa läpi vuosikymmenten. Tilat ovat kokeneet useita uudistuksia, ja osassa niistä on kunnostettu alkuperäisiä elementtejä, kuten upeat vanhat kakluunit. Rakennuksen julkisivu on peruskorjattu vuoden 2025 aikana.

Katutasossa sijaitsevat liiketilat ja ylemmissä kerroksissa toimistotilat. Kiinteistö tarjoaa sekä perinteistä huonetoimistoa että helposti muunneltavaa avotilaa, ja tiloissa on miellyttävän korkea huonekorkeus.

Sijainti Fennia-korttelissa, aivan rautatientorin vieressä, takaa erinomaiset julkisen liikenteen yhteydet koko pääkaupunkiseudulle. Myös kaupalliset ja yrityspalvelut ovat vain lyhyen kävelymatkan päässä.

Kaikille Fennia-korttelin kiinteistöille on myönnetty BREEAM In-Use Excellent -tason ympäristösertifikaatti, ja koko kortteli toimii 100 % päästöttömällä energialla, kuten tuulisähköllä ja uusiutuvalla kaukolämmöllä.

 

Kiinteistön tiedot

Saavutettavuus

Kiinteistön vieressä sijaitsevat Rautatieasema ja Rautatientorin linja-autoasema takaavat erinomaisen julkisen liikenteen saavutettavuuden, jota täydentää korttelin alapuolella sijaitseva Helsingin yliopiston metroasema.

Palvelut

Fennia-korttelissa on mittava määrä ravintoloita ja muita viihdepalveluita. Keskeinen sijainti ydinkeskustassa takaa sen, että kaikki kaupalliset ja yrityspalvelut sijaitsevat lyhyen kävelymatkan etäisyydellä.

Pysäköinti

Henkilöautoilijoita palvelevat rautatieaseman yhteydessä sijaitseva Engelin pysäköintilaitos ja Kluuvin pysäköintilaitos, josta on suora yhteys Helsingin yliopiston metroaseman kautta.

Vapaat tilat

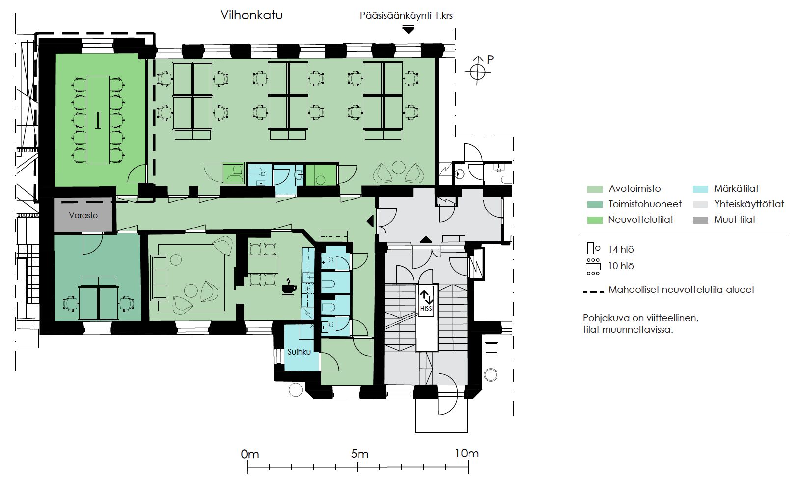
  • Toimistotila – 5. kerros

    Ylimmän kerroksen toimisto, jossa on avotilaa ja huoneita. Tilassa on hyvä huonekorkeus ja näkymät sekä Vilhonkadulle että sisäpihalle.
    • Pinta-ala

      194 m2

    Ota yhteyttä

  • Toimistotila – 5. kerros

    Ylimmän kerroksen toimisto, jossa on avotilaa ja huoneita. Tilassa on hyvä huonekorkeus ja näkymät sekä Vilhonkadulle että sisäpihalle.
    • Pinta-ala

      186 m2

    Ota yhteyttä

  • Toimistotila – 4. kerros

    4. kerroksen toimisto, jossa on sekä huoneita että avotilaa. Näkymät sekä Vilhonkadulle että sisäpihalle. Tilassa on hyvä huonekorkeus ja sen erikoisuutena on useampi upea vanha kakluuni.
    • Pinta-ala

      183 m2

    Ota yhteyttä

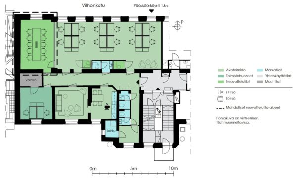
  • Toimistotila – 3. kerros

    3. kerroksen toimisto, jossa on sekä huoneita että avotilaa. Näkymät sekä Vilhonkadulle että sisäpihalle. Tilassa on hyvä huonekorkeus ja sen erikoisuutena on useampi upea vanha kakluuni.
    • Pinta-ala

      181 m2

    Ota yhteyttä

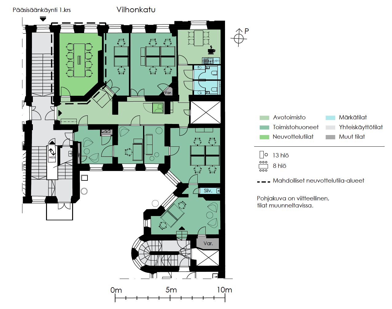
  • Toimistotila – 2. kerros

    2. kerroksen huonetoimisto, josta on näykmät sekä Vilhonkadulle että sisäpihalle. Tilassa on hyvä huonekorkeus.
    • Pinta-ala

      179 m2

    Ota yhteyttä

  • Toimistotila – 3. kerros

    3. kerroksen toimisto, jossa on sekä huoneita että avotilaa. Näkymät sekä Vilhonkadulle että sisäpihalle. Tilassa on hyvä huonekorkeus ja sen erikoisuutena on useampi upea vanha kakluuni.
    • Pinta-ala

      176 m2

    Ota yhteyttä

  • Toimistotila – 4. kerros

    4. kerroksen toimisto, jossa on sekä huoneita että avotilaa. Näkymät sekä Vilhonkadulle että sisäpihalle. Tilassa on hyvä huonekorkeus ja sen erikoisuutena on useampi upea vanha kakluuni.
    • Pinta-ala

      173 m2

    Ota yhteyttä

  • Toimistotila – 2. kerros

    2. kerroksen toimistotila, jossa on sekä avotilaa että toimistohuoneita. Tilasta on hyvä huonekorkeus ja sen erikoisuutena on upea vanha kakluuni. Tilasta on näkymät sekä Vilhonkadulle että sisäpihalle.
    • Pinta-ala

      150 m2

    Ota yhteyttä

Nimi Kerros Pinta-ala Saatavuus Kuvaus
Toimistotila 5 194 m2 Vapaa Ylimmän kerroksen toimisto, jossa on avotilaa ja huoneita. Tilassa on hyvä huonekorkeus ja näkymät sekä Vilhonkadulle että sisäpihalle.
Toimistotila 5 186 m2 Vapaa Ylimmän kerroksen toimisto, jossa on avotilaa ja huoneita. Tilassa on hyvä huonekorkeus ja näkymät sekä Vilhonkadulle että sisäpihalle.
Toimistotila 4 183 m2 Vapaa 4. kerroksen toimisto, jossa on sekä huoneita että avotilaa. Näkymät sekä Vilhonkadulle että sisäpihalle. Tilassa on hyvä huonekorkeus ja sen erikoisuutena on useampi upea vanha kakluuni.
Toimistotila 3 181 m2 Vapaa 3. kerroksen toimisto, jossa on sekä huoneita että avotilaa. Näkymät sekä Vilhonkadulle että sisäpihalle. Tilassa on hyvä huonekorkeus ja sen erikoisuutena on useampi upea vanha kakluuni.
Toimistotila 2 179 m2 Vapaa 2. kerroksen huonetoimisto, josta on näykmät sekä Vilhonkadulle että sisäpihalle. Tilassa on hyvä huonekorkeus.
Toimistotila 3 176 m2 Vapaa 3. kerroksen toimisto, jossa on sekä huoneita että avotilaa. Näkymät sekä Vilhonkadulle että sisäpihalle. Tilassa on hyvä huonekorkeus ja sen erikoisuutena on useampi upea vanha kakluuni.
Toimistotila 4 173 m2 Vapaa 4. kerroksen toimisto, jossa on sekä huoneita että avotilaa. Näkymät sekä Vilhonkadulle että sisäpihalle. Tilassa on hyvä huonekorkeus ja sen erikoisuutena on useampi upea vanha kakluuni.
Toimistotila 2 150 m2 Vapaa 2. kerroksen toimistotila, jossa on sekä avotilaa että toimistohuoneita. Tilasta on hyvä huonekorkeus ja sen erikoisuutena on upea vanha kakluuni. Tilasta on näkymät sekä Vilhonkadulle että sisäpihalle.

Yhteystiedot

Haluatko lisätietoa kohteesta?

Kluuvi, Vilhonkatu 6, 00100 Helsinki