Fennia Block: Nikolajeff

Mikonkatu 19

Kluuvi, Mikonkatu 19, 00100 Helsinki
A historically significant office and commercial property in the Fennia Block. Fully renovated spaces provide an excellent setting for various companies.

The history of Mikonkatu 19 dates back to 1912, when Konekauppa Aatra commissioned the construction of a five-story commercial building in the late Art Nouveau style, designed by the architectural firm Palmqvist & Sjöström. The building later came under the ownership of Autoliike Nikolajeff, from whom it received its name, and it is a protected, architecturally and culturally valuable part of the Fennia Block.

Thanks to its historical value and central location, Mikonkatu 19 is a unique office and commercial property in the heart of Helsinki, right next to the Central Railway Station, offering excellent public transport connections throughout the metropolitan area.

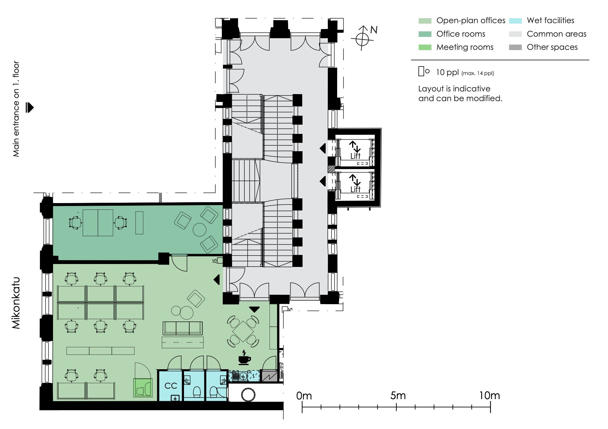
The property consists of two buildings, one accessible from Mikonkatu and the other from Vilhonkatu. The buildings are partially connected to each other. There are retail spaces on the ground floor and office spaces on the upper floors. The fully renovated spaces, which reflect the property's history, provide an excellent setting for various companies. The property offers both traditional office rooms and easily adaptable open-plan spaces.

All properties in the Fennia Block have been awarded the BREEAM In-Use Excellent environmental certificate, and the entire block operates on 100% emission-free energy, such as wind power and renewable district heating.

Property details

Accessibility

The Central Railway Station and the adjacent Rautatientori bus station provide excellent accessibility to public transport, supplemented by the University of Helsinki metro station located below the block.

Services

The Fennia Block offers a large number of restaurants and other entertainment services. The central location of the property ensures that all commercial and business services are located within a short walking distance. There is an indoor bike storage as well as locker rooms and showers available for commuter cyclists.

Parking

Private cars have access to the Eliel parking facility, which is connected to the Central Railway Station, and the Kluuvi parking facility, which provides direct access to the University of Helsinki metro station.

Available spaces

  • Office space – 4th floor

    A space with high ceiling where space arrangements are implemented according to your wishes. View overlooking Vilhonkatu.
    • Floor area

      210 m2

    Contact us

  • Office space – 3rd floor

    An efficient and comfortable office with views over Rautatientori and a peaceful inner courtyard.
    • Floor area

      200 m2

    Contact us

  • Office space – 3rd floor

    Neat and efficient office space overlooking Rautatientori and the inner courtyard.
    • Floor area

      107 m2

    Contact us

  • Office space – 3rd floor

    Neat and efficient office space overlooking the inner courtyard.
    • Floor area

      93 m2

    Contact us

  • Office space – 5th floor

    Neat and compact office space with skylights.
    • Floor area

      52 m2

    Contact us

Name Floor Area Availability Description
Office space 4 210 m2 Free A space with high ceiling where space arrangements are implemented according to your wishes. View overlooking Vilhonkatu.
Office space 3 200 m2 Free An efficient and comfortable office with views over Rautatientori and a peaceful inner courtyard.
Office space 3 107 m2 Free Neat and efficient office space overlooking Rautatientori and the inner courtyard.
Office space 3 93 m2 Free Neat and efficient office space overlooking the inner courtyard.
Office space 5 52 m2 Free Neat and compact office space with skylights.

Contact information

Contact us about

Kluuvi, Mikonkatu 19, 00100 Helsinki